Kraków, Prądnik Czerwony, Reduta

Mieszkanie na sprzedaż

Opis nieruchomości

Opis

Na sprzedaż od osoby prywatnej funkcjonalne, przestronne i bardzo jasne mieszkanie o powierzchni 58,14 m², położone przy ul. Reduta 40B w Krakowie (IV piętro) – w wyjątkowej lokalizacji bezpośrednio przy Parku Reduta.

To idealna propozycja dla osób ceniących komfort życia w mieście z jednoczesnym dostępem do zieleni, dla rodzin z dziećmi, a także dla inwestorów poszukujących atrakcyjnej nieruchomości pod wynajem.

Lokalizacja – jeden z największych atutów

Mieszkanie znajduje się tuż przy wejściu do Parku Reduta – wystarczy wyjść z budynku, aby znaleźć się na terenach zielonych idealnych do spacerów, biegania czy relaksu.

W najbliższej okolicy:

  • Park Reduta o pow. 7 ha z kawiarnią, 4 placami zabaw, wybiegiem dla psów, dodatkowo park poprzez ścieżkę edukacyjną łączy się również z parkiem na os. Złotego Wieku
  • Będąca na ukończeniu linia tramwajowa – jeszcze bardziej ułatwi komunikację z centrum miasta, (przystanki tramwajowe i autobusowe 5 min pieszo)
  • Liczne przedszkola i szkoły, kilka placów zabaw w okolicy
  • Aquapark Kraków, Cinema City, Galeria Serenada (10-15 min pieszo)
  • Sklepy: Lewiatan, Żabka, Biedronka, Auchan oraz mniejsze punkty usługowe i piekarnie,
  • szybki dojazd do centrum i obwodnicy miasta (wyjazd z osiedla możliwy w kilku kierunkach, więc nie utkniesz w korku na jedynej drodze dojazdowej)

Najważniejsze atuty mieszkania

  • ekspozycja południowo-zachodnia – mieszkanie jest doskonale doświetlone przez cały dzień co wpływa również na niskie koszty ogrzewania
  • duży narożny balkon – przytulnie zagospodarowany, idealny na relaks po pracy i przy zachodach słońca, z balkonu rozciąga się Panorama na miasto
  • 4. piętro – więcej światła i prywatności, a przy dobrej widoczności widać nawet Tatry
  • zabudowa meblowa na wymiar wysokiej jakości, w lakierze, w całym mieszkaniu – maksymalne wykorzystanie przestrzeni i potencjału pomieszczeń
  • duży i przestronny salon
  • kuchnia z wyspą dającą sporą przestrzeń roboczą
  • mieszkanie gotowe do zamieszkania

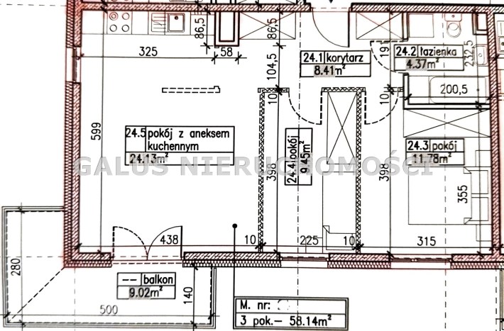
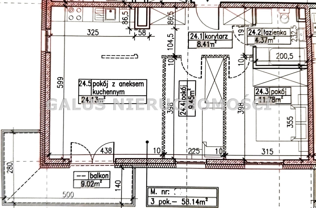
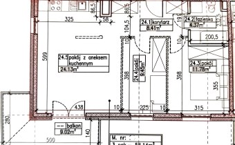
Układ pomieszczeń

  • salon z aneksem kuchennym – 24,13 m2
  • sypialnia – 11,78 m2
  • drugi pokój (gabinet / pokój dziecięcy) – 9,45 m2
  • łazienka – 4,37 m2
  • przedpokój z zabudową – 8,41 m2
  • duży balkon narożny – 9,02 m2

Dodatkowo

  • szerokie miejsce postojowe w garażu podziemnym (poziom -1) w cenie 60 tys. zł
  • szafa metalowa znajdująca się przy miejscu postojowym w garażu – w cenie 10 tys. zł

 

Mieszkanie sprzedawane jest z zabudową stałą oraz częściowym wyposażeniem.

Mieszkanie dostępne od lutego 2027 r. i z tego tytułu oferujemy obniżkę ceny do negocjacji.

 

Zapraszam do kontaktu w celu uzyskania szczegółowych informacji oraz umówienia prezentacji.

Nota prawna

Opis oferty zawarty na stronie internetowej sporządzany jest na podstawie oględzin nieruchomości oraz informacji uzyskanych od właściciela, może podlegać aktualizacji i nie stanowi oferty określonej w art. 66 i następnych K.C.

Szczegóły oferty

Symbol oferty GLS-MS-3745
Powierzchnia 58,14 m²
Powierzchnia użytkowa 58,14 m²
Powierzchnia balkonów/tarasów 9,02 m²
Liczba pokoi 3
Piętro 4
Rodzaj budynku blok
Technologia budowlana ceramika
Standard
Opłaty w czynszu administracja, Części wspólne, fundusz remontowy, monitoring, ogrzewanie, sprzątanie, Winda, woda, woda ciepła, woda/ryczałt na wodę, zaliczka na fundusz remontowy
Opłaty wg liczników prąd
Liczba pięter w budynku 5
Stan lokalu bardzo dobry
Stan prawny Własność
Mies. czynsz admin. 880 PLN
Okna PCV
Instalacje nowe
Balkon duży
Liczba balkonów 1
Rok budowy 2024
Plac zabaw tak
Widok na inne budynki
Gaz brak
Woda ciepła - miejska
Dojazd asfalt
Otoczenie działki zabudowane
Ogrzewanie C.O. miejskie
Winda tak
Liczba wind 1
Usytuowanie dwustronne
Drzwi antywłamaniowe tak
Przystosowania dla niepełnosprawnych tak

Pomieszczenia

Powierzchnia pokoi 24,13 - 11,78 - 9,45 m2
Podłogi pokoi deska drewniana
Typ kuchni umeblowana i wyposażona
Rodzaj kuchni aneks kuchenny - połączony z salonem
Podłoga kuchni gres
Typ łazienki razem z wc
Liczba łazienek 1
Powierzchnia łazienki 4,37 m2
Glazura łazienki nowego typu
Podłoga łazienki terakota
Wyposażenie łazienki kabina prysznicowa, lustro, natrysk, pralka, prysznic, umywalka, WC
Liczba przedpokoi 1
Powierzchnia przedpokoi 8,41 m2
Podłoga przedpokoi gres

Lokalizacja

Kalkulator kredytowy

PLN
%
Wysokość raty

Kalkulator kosztów

PLN
PLN
PLN
PLN
PLN
PLN
%
PLN
Podatek od czynności cywilno-prawnych
Taksa notarialna (opłata notarialna)
VAT od taksy notarialnej (opłaty notarialnej)
Wniosek do WKW
VAT od wniosku do WKW
Prowizja agencji nieruchomości
VAT od prowizji agencji nieruchomości
Wypisy aktu notarialnego - około
RAZEM (cena + opłaty)

Uwaga: mogą wystąpić dodatkowe opłaty za założenie księgi wieczystej oraz ustanowienie hipoteki.

Podobne oferty

mieszkanie na sprzedaż - Kraków, Mistrzejowice, Piasta Kołodzieja

mieszkanie na sprzedaż

Kraków, Mistrzejowice, Piasta Kołodzieja
2 pokoje 50,00 m2 17 000,00 zł/m2
mieszkanie na sprzedaż - Kraków, Krowodrza, Azory, Pielęgniarek

mieszkanie na sprzedaż

Kraków, Krowodrza, Azory, Pielęgniarek
2 pokoje 44,00 m2 20 227,27 zł/m2
oferta specjalna
mieszkanie na sprzedaż - Kraków, Mistrzejowice, Piasta Kołodzieja

mieszkanie na sprzedaż

Kraków, Mistrzejowice, Piasta Kołodzieja
3 pokoje 45,72 m2 16 951,01 zł/m2
oferta specjalna
mieszkanie na sprzedaż - Kraków, Prądnik Czerwony, Józefa Łepkowskiego

mieszkanie na sprzedaż

Kraków, Prądnik Czerwony, Józefa Łepkowskiego
2 pokoje 60,36 m2 13 667,99 zł/m2

Napisz do nas

Proszę wypełnić to pole
Proszę wypełnić to pole
Proszę wypełnić to pole
Proszę wypełnić to pole

Ta strona wykorzystuje pliki cookies w celach statystycznych oraz w celu dostosowania naszych serwisów do indywidualnych potrzeb klientów. Zmiany ustawień dotyczących plików cookie można dokonać w dowolnej chwili modyfikując ustawienia przeglądarki. Korzystanie z tej strony bez zmian ustawień dotyczących cookies oznacza, że będą one zapisane w pamięci urządzenia.

rozumiem